What is SOLIDWORKS Inspection?
SOLIDWORKS Inspection is a First Article Inspection (FAI) and in-process inspection software that streamlines and automates the creation of ballooned inspection drawings and inspection reports (AS9102, PPAP, etc.).
Simplify the inspection document creation process
Company quality departments are tasked with carrying out the quality inspection process. This often involves the creation of documents such as drawings with balloon callouts, reports for use during inspection, or additional deliverables required with parts.
The manual creation of inspection documents will often take hours using Microsoft Excel and hand-written annotations.
SOLIDWORKS Inspection software automates the manual and tedious process by leveraging existing 2D legacy data such as SOLIDWORKS files, PDFs, and TIFFs. Or capture data using a digital measuring instrument
Capabilities
SOLIDWORKS Inspection streamlines your inspection processes by automating the creation of balloons on engineering drawings, and the creation of inspection data sheets and reports.
For any CAD system
You can create your inspection documents regardless of your existing CAD system, using either the standalone SOLIDWORKS Inspection application or the integrated SOLIDWORKS Inspection add-in.
Automatic Balloons
Automatically add balloon callouts with Inspection Dimensions specified by the designer or mechanical engineer.
Comparison tool
Compare drawing revisions and originals to quickly identify changes.
Easy to use
Intuitive and easy to use, SOLIDWORKS Inspection enables you to create inspection reports and ballooned drawings in just minutes, for time savings of up to 90 percent.
Export Results
Export finished ballooned drawings as a PDF and inspection sheets to Microsoft® Excel® spreadsheets using standard templates such as AS9102 or PPAP forms.
SOLIDWORKS Inspection Features
Simplify document creation to help streamline part inspection and improve quality
A Streamlined Process
SOLIDWORKS Inspection streamlines your inspection processes by automating the creation of balloons on engineering drawings, and the creation of inspection data sheets and reports.
Sequentially numbered balloons are applied automatically to help you keep track of the dimensions and characteristics to inspect. Accurate bubbled prints and inspection sheets are generated in just minutes. With SOLIDWORKS Inspection, companies have reduced the time to create First Article Inspection packages by up to 90 percent.
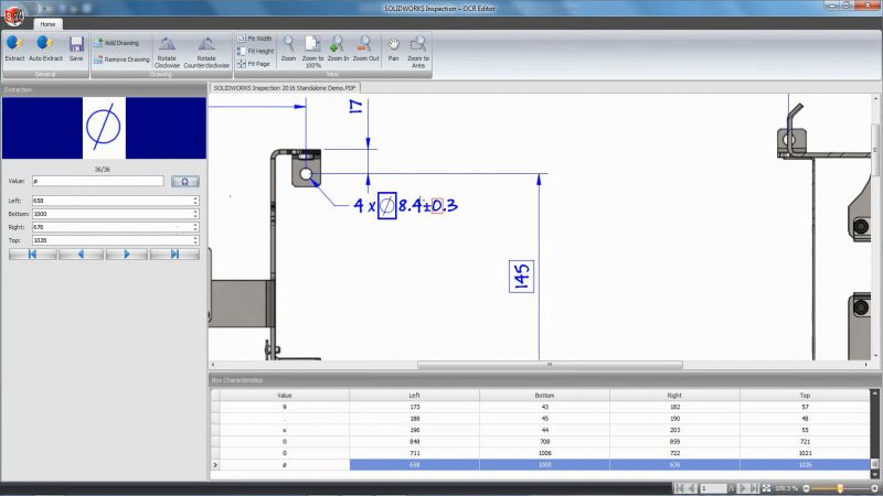
Optical Character Recognition
In many companies, engineering drawings arrive in PDF or TIFF formats. In these cases SOLIDWORKS Inspection uses optical character recognition (OCR).
SOLIDWORKS Inspection can read and identify the nominal dimension, plus and minus tolerances, and the type of dimension (such as diametric or linear), helping to virtually eliminate manual input and reduce errors.
It works with horizontal and vertical dimensions, split dimensions, notes, hole callouts, finish symbols, and geometric dimensioning and tolerancing (GD&T) symbols.
This means you can create your inspection documents regardless of your existing CAD system using the included standalone version of SOLIDWORKS Inspection.
SOLIDWORKS Inspection Professional & CMM
The SOLIDWORKS Inspection Professional version extends the capabilities of SOLIDWORKS Inspection by giving users multiple ways to enter measured values directly into the project to help simplify part inspection.
Each characteristic value can be entered manually, by using a digital caliper, or by importing coordinate measuring machine (CMM) results.
SOLIDWORKS Inspection Professional provides these additional features:
- Characteristics Measurements Input
- Bonus Tolerance Support
- Digital Measuring Tools Support (Digital Caliper, etc.)
- CMM Data Import (PC-DMIS, Calypso, Faro CAM2, etc.)
- CMM Template Editor
- Automatic Verification
- Colour-Coded Characteristics (Pass, Marginal, Fail)
- Export Measurements
SOLIDWORKS Inspection Benefits
Help improve product quality and save money
Reduce time-to-market
SOLIDWORKS Inspection helps drastically reduce the time needed to generate inspection reports. In just a few clicks, you can create industry-compliant inspection reports (such as AS9102, PPAP, ISO 13485) or use the powerful template editor to develop a report that matches your company’s needs.
Faster than manual methods
Using manual inspection methods can mean hundreds of characteristics, dimensions, tolerances, and notes have to be manually entered into a Microsoft® Excel® spreadsheet.
SOLIDWORKS Inspection helps avoid errors and inconsistencies traditionally associated with manual data input.
Eliminate Change Costs
If changes to the model by an engineer or customer are required, this can cause drawing revisions that require quality inspectors to redo the work and input all the characteristics again.
Automated document creation can help your company significantly improve costs when changes are made, as you can rerun the inspection process.
SOLIDWORKS Inspection Training
Courses for creating inspection documents and understanding GD&T
SOLIDWORKS Services included
Improve your performance and productivity with Javelin services
Technical Support
With SOLIDWORKS Subscription Service, you have access to extensive help from our SOLIDWORKS experts. Which will enhance your software investment and guide you through development challenges.
Benefits
- Live Technical Support from our certified support team.
- Remote Support to solve your technical issue right on your machine.
- Regular Communication of software updates and technical tips and tricks.
Upgrades & Resources
Enjoy the latest version of your software and direct access to a comprehensive library of drawings, parts, assemblies, and features contributed by users around the globe.
Advantages
- Automatic Upgrades to the most Up-to-date Version of your SOLIDWORKS software.
- FREE access to the SOLIDWORKS Customer Portal for Macros, Documentation, and the ability to submit Enhancement Requests.
- Full access to the SOLIDWORKS Knowledge Base for Articles, Tech Tips, and Best Practices.
Online Training & Certification
A SolidProfessor and a MySolidWorks online account is included with your subscription service where you can get answers, stay current, and sharpen your design skills with online training:
Features
- SolidProfessor includes 15K+ online tutorial videos.
- FREE access to SOLIDWORKS testing and certification to help you become a Certified SOLIDWORKS Associate (CSWA) or Professional (CSWP).
Find out the Cost
Get Canadian pricing for SOLIDWORKS software
